96 кв.м.
Объект недвижимости, 96 м²
Лот
109753013Цена за м2
151 042 руб.Этаж
3Расположение
- Локация: Санкт-Петербург
- Район: Центральный
- Адрес: Санкт-Петербург, Центральный район, 4-я Советская ул., д.16/10
- Метро: Маяковская, Площадь Восстания, Чернышевская
- Пешком до метро: 12 минут
- Показать на карте
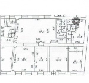
Продажа помещения по адресу 4-я Советская улица, 16/10 на 3 этаже.
Об объекте:
- все городские коммуникации;
- отдельный вход со двора;
- высота потолков 4 м;
- Планировка: Кабинетная.Состоит из трех светлых и просторных комнат:общей рабочей зоны,переговорной и зоны для кофе-брейков;
- качественный ремонт;
- Энергетическая мощность 10 кВт
Удобное расположение: в пешей доступности от м. Площадь Восстания, м. Чернышевская и м. Маяковская.
Инфраструктура: в пешей доступности остановки общественного транспорта, магазины, кафе и бутики.
Есть действующий арендатор (АП 109 000 руб./мес. + КУ).
собственник юридическое лицо с НДС.
Возможен торг!
Сотрудничаем с агентствами, направим презентацию!
Звоните и записывайтесь на просмотр!
Юридическое сопровождение для Вас бесплатно!
Особенности
- Паркинг
Подробнее об объекте
- Тип сделки: продажа
- Тип недвижимости: коммерческая
- Категория: коммерческая
- Общая площадь: 96 кв.м.
- Цена за м²: 151 042 руб.
- Этаж: 3
- Этажей в доме: 5
- Вид здания: Другой
- Ремонт: косметический
- Фундамент: Отдельный вход со двора
- Электричество кВт: 10
- Тип электроснабжения: Да
- Электромощность: 10
- Тип коммерческой недвижимости: free purpose
- Фонд: нежилой
Персональный менеджер объекта, Татьяна Быхун
Rielt Group Agency — это команда профессионалов, которые ставят своей целью не просто закрыть очередную сделку, а оказать заказчику всестороннюю помощь. Это информационная поддержка, продвижение, сбор документов, консультации, проведение переговоров.
Наши постоянные клиенты — это сетевые компании, предприятия, физические лица. За много лет мы накопили опыт работы в разных городах и регионах России, включая Санкт-Петербург, Москву и Крым.
Команда Rielt Group Agency избавит Вас от рисков и тревог, от бумажной волокиты и от необходимости лично контролировать все нюансы.
Хотите получить индивидуальный подбор объектов от агента?
Хотите приобрести или взять в аренду недвижимость? Вам поможет команда Rielt Group Agency. Обращаясь к нам, Вы получаете всестороннюю поддержку — от начальной консультации до заключения договора.
Все объекты агентаПохожие объекты
Устали
выбирать сами?
Соблюдение интересов клиента, удобство и высокое качество оказываемых услуг — наш главный приоритет. Доверяя нам поиск и подбор объектов, Вы экономите свое время и получаете предложения, точно подходящие под Ваш запрос. В Ваше распоряжение будут предоставлены варианты из актуальной и постоянно пополняемой базы Rielt Group Agency. Став нашим клиентом, Вы будете раньше других получать информацию о новых объектах, еще до того, как сведения о них появятся в открытых интернет-источниках.
Хотите узнавать об объектах, не представленных в открытом рынке? Ваш персональный менеджер будет рад предоставить Вам и такую информацию.
Всё ещё остались вопросы?
Хотите подробнее узнать о представленных вариантах? Желаете уточнить подробности сотрудничества с Rielt Group Agency? Просто укажите свое имя и оставьте телефон. Вскоре наш менеджер свяжется с Вами, чтобы подробно ответить на все вопросы.
















































