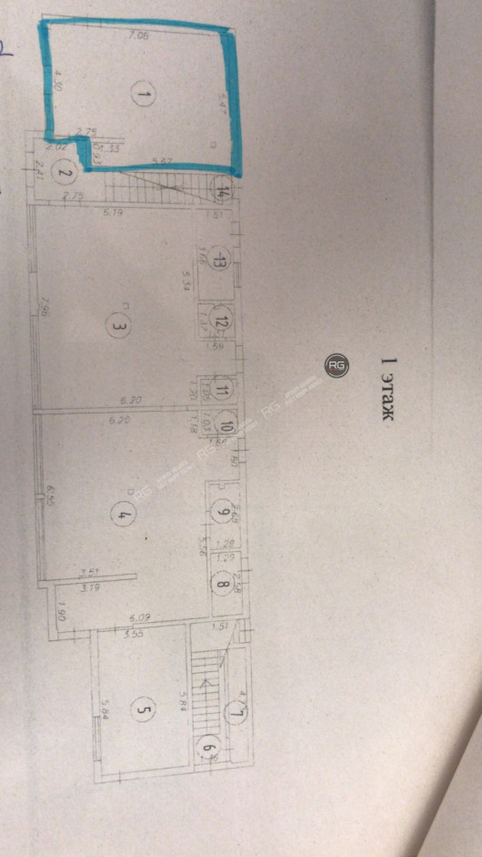
35 кв.м.
Помещение в ТК у входа в метро, 35 м²
Лот
59786813Цена за м2
5 000 руб. / в месяцВсего этажей
3Расположение
- Локация: Санкт-Петербург
- Район: Красногвардейский
- Адрес: Санкт-Петербург, Красногвардейский район, Уткин пр-кт., д.13, к.15
- Метро: Ладожская
- Пешком до метро: 1 минут
- Показать на карте
Аренда универсального помещения площадью 35 м2 по адресу Уткин проспект, д.13 к.15 в ТК «Польза».
Об объекте:
- Общая площадь 35 м2;
- Подвал.
Технические характеристики:
- Входная эл. мощность 12 кВт;
- Парковка;
- Центральное отопление, городская канализация.
Удобное расположение: станция метро «Ладожская» прямо у входа в ТК.
Инфраструктура: рядом остановки общественного транспорта. Полностью развитая инфраструктура, магазины, кафе и пр.
УСН. В арендную плату входят коммунальные услуги.
Идеально подходит для размещения: пункта выдачи заказов, мастерскую и пр.
Для Вас юридическое сопровождение бесплатно!
Звоните и записывайтесь на просмотр!
Особенности
- Лифт
- Паркинг
- Интернет
Подробнее об объекте
- Тип сделки: аренда
- Тип недвижимости: коммерческая
- Категория: коммерческая
- Тип дома: Монолитный
- Общая площадь: 35 кв.м.
- Цена за м²: 5 000 руб.
- Этажей в доме: 3
- Вид здания: Торговый центр
- Ремонт: косметический
- Фундамент: Вход с улицы (общий)
- Тип отопления: Центральное
- Теплоснабжение: Да
- Тип канализации: Централизованная
- Электричество кВт: 12
- Тип электроснабжения: Да
- Электромощность: 12
- Коммунальные платежи включены: Да
- НДС: УСН
- Тип коммерческой недвижимости: free purpose
- Фонд: нежилой
Персональный менеджер объекта, Татьяна Быхун
Rielt Group Agency — это команда профессионалов, которые ставят своей целью не просто закрыть очередную сделку, а оказать заказчику всестороннюю помощь. Это информационная поддержка, продвижение, сбор документов, консультации, проведение переговоров.
Наши постоянные клиенты — это сетевые компании, предприятия, физические лица. За много лет мы накопили опыт работы в разных городах и регионах России, включая Санкт-Петербург, Москву и Крым.
Команда Rielt Group Agency избавит Вас от рисков и тревог, от бумажной волокиты и от необходимости лично контролировать все нюансы.
Хотите получить индивидуальный подбор объектов от агента?
Хотите приобрести или взять в аренду недвижимость? Вам поможет команда Rielt Group Agency. Обращаясь к нам, Вы получаете всестороннюю поддержку — от начальной консультации до заключения договора.
Все объекты агентаПохожие объекты
Устали
выбирать сами?
Соблюдение интересов клиента, удобство и высокое качество оказываемых услуг — наш главный приоритет. Доверяя нам поиск и подбор объектов, Вы экономите свое время и получаете предложения, точно подходящие под Ваш запрос. В Ваше распоряжение будут предоставлены варианты из актуальной и постоянно пополняемой базы Rielt Group Agency. Став нашим клиентом, Вы будете раньше других получать информацию о новых объектах, еще до того, как сведения о них появятся в открытых интернет-источниках.
Хотите узнавать об объектах, не представленных в открытом рынке? Ваш персональный менеджер будет рад предоставить Вам и такую информацию.
Всё ещё остались вопросы?
Хотите подробнее узнать о представленных вариантах? Желаете уточнить подробности сотрудничества с Rielt Group Agency? Просто укажите свое имя и оставьте телефон. Вскоре наш менеджер свяжется с Вами, чтобы подробно ответить на все вопросы.












































