100 кв.м.
Панорамная квартира в элитном ЖК, 100 м²
Лот
54870154Комнат
3Цена за м2
2 000 руб. / в месяцЭтаж
7Расположение
- Локация: Санкт-Петербург
- Район: Центральный
- Адрес: Санкт-Петербург, Центральный район, Орловская ул., д.1, к.3
- Метро: Чернышевская
- Пешком до метро: 15 минут
- Показать на карте
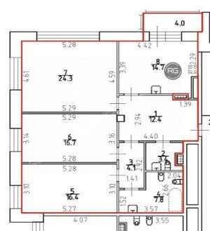
Аренда трехкомнатной квартиры в жилом комплексе премиум-класса «Смолтный парк» по адресу Орловская ул., д.1 к.3. Общей площадью 100 м2 на 7 этаже.
Об объекте:
Технические характеристики:
Удобное расположение: престижная локация в центре города, при этом тишина и спокойствие зеленого района, чистый воздух, близость к деловому и историческому центру города, пешеходная доступность легендарных петербургских достопримечательностей.
Рядом с комплексом проходят важнейшие транспортные магистрали центральной части города — Воскресенская набережная, Шпалерная улица, Суворовский проспект.
Инфраструктура:
Звоните и записывайтесь на просмотр!
Для вас юридическое сопровождение бесплатно!
Особенности
- Балкон
- Лифт
- Паркинг
- Интернет
- Телевизор
- Стиральная машина
- Посудомоечная машина
- Холодильник
Подробнее об объекте
- Тип сделки: аренда
- Тип недвижимости: жилая
- Категория: квартира
- Тип дома: Монолитный
- Количество комнат: 3
- Комнатность: 3
- Общая площадь: 100 кв.м.
- Жилая площадь: 57.4 кв.м.
- Площадь кухни: 14.7 кв.м.
- Площадь комнаты: 24.3, 16.7, 16.4
- Цена за м²: 2 000 руб.
- Этаж: 7
- Этажей в доме: 9
- Вид из окон: Во двор и на улицу
- Ремонт: дизайнерский
- Планировка: Изолированная
- Тип балкона: Балкон
- Тип отопления: Центральное
- Санузел: 2
- Раздельный санузел: 2
- С детьми: Да
- Мебель в комнате: Да
- Коммунальные платежи включены: Да
- Новостройка: Да
- Кондиционер: Да
- НДС: c НДС
Персональный менеджер объекта, Татьяна Быхун
Rielt Group Agency — это команда профессионалов, которые ставят своей целью не просто закрыть очередную сделку, а оказать заказчику всестороннюю помощь. Это информационная поддержка, продвижение, сбор документов, консультации, проведение переговоров.
Наши постоянные клиенты — это сетевые компании, предприятия, физические лица. За много лет мы накопили опыт работы в разных городах и регионах России, включая Санкт-Петербург, Москву и Крым.
Команда Rielt Group Agency избавит Вас от рисков и тревог, от бумажной волокиты и от необходимости лично контролировать все нюансы.
Хотите получить индивидуальный подбор объектов от агента?
Хотите приобрести или взять в аренду недвижимость? Вам поможет команда Rielt Group Agency. Обращаясь к нам, Вы получаете всестороннюю поддержку — от начальной консультации до заключения договора.
Все объекты агентаПохожие объекты
Устали
выбирать сами?
Соблюдение интересов клиента, удобство и высокое качество оказываемых услуг — наш главный приоритет. Доверяя нам поиск и подбор объектов, Вы экономите свое время и получаете предложения, точно подходящие под Ваш запрос. В Ваше распоряжение будут предоставлены варианты из актуальной и постоянно пополняемой базы Rielt Group Agency. Став нашим клиентом, Вы будете раньше других получать информацию о новых объектах, еще до того, как сведения о них появятся в открытых интернет-источниках.
Хотите узнавать об объектах, не представленных в открытом рынке? Ваш персональный менеджер будет рад предоставить Вам и такую информацию.
Всё ещё остались вопросы?
Хотите подробнее узнать о представленных вариантах? Желаете уточнить подробности сотрудничества с Rielt Group Agency? Просто укажите свое имя и оставьте телефон. Вскоре наш менеджер свяжется с Вами, чтобы подробно ответить на все вопросы.










































