636 кв.м.
3-к коттедж, 636 м²
Лот
49306901Комнат
3Цена за м2
192 453 руб.Всего этажей
2Расположение
- Локация: Солнечное п.
- Район: Курортный
- Адрес: Санкт-Петербург, Курортный район, Солнечное п., Курортный, Вокзальная ул., д.8
- Метро: Беговая
- До метро на транспорте: 20 минут
- Показать на карте
Предлагаем к приобретению двухэтажный дом с цоколем - построен по технологии ФАХВЕРК, в элитном современном клубном поселке из 11 домов.
Площадь дома - 636 м2, участок 14 соток.
Дом находится на стадии "белый короб". Возможна отделка по индивидуальному дизайну. Панорамное остекление позволяет сделать окружающую природу лучшей частью домашнего интерьера.
Эргономичная, продуманная планировка:
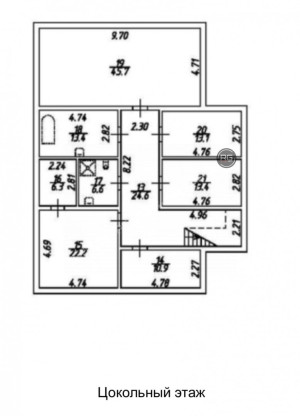
- Цокольный этаж: сауна, санузел и душевая, винный погреб, кинотеатр, игровая, тех помещения.
- Первый этаж: кухня, гостиная, санузел. В гостиной зоне установлен Камин с Топками Palazzetti Sunny Fire 100 DX с облицовкой из натурального камня.
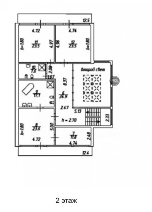
- Второй этаж: три спальни, гардеробные, ванные комнаты.
Коммуникации:
Электроснабжение в доме выполнено от построенной трансформаторной подстанции, установленная мощность 21 кВт. Для учета электроэнергии установлен трехфазный прямоточный счетчик. Дом оборудован индивидуальной котельной, установлен котел немецкого производства, фирмы Buderus, мощностью до 76 кВт. Отопление дома происходит за счет подогрева теплоносителя от газового котла. На всех этажах дома смонтированы многоконтурные теплые полы. В помещениях установлены термодатчики с автоматической регулировкой температуры. Дом подключен к городской напорного водоснабжения и самоточного водоотведения ГУП Водоканал. Приготовление горячей воды происходит за счет газового оборудования. Первый и цокольный этажи дома оборудованы централизованной системой вентиляции и кондиционирования воздуха. Все сан.узлы оборудованы принудительной вентиляцией. В спальных комнатах второго этажа установлены индивидуальные системы кондиционирования воздуха. Слаботочные сети: выполнена разводка сетей телевидения, интернета и домофонии.
Звоните и записывайтесь на индивидуальный просмотр.
Особенности
- Ипотека
Подробнее об объекте
- Тип жилья: коттедж
- Тип сделки: продажа
- Тип недвижимости: жилая
- Категория: коттедж
- Тип дома: Брус
- Количество комнат: 3
- Комнатность: 3
- Общая площадь: 636 кв.м.
- Площадь участка: 15 сотка
- Тип участка: ДНП
- Цена за м²: 192 453 руб.
- Этажей в доме: 2
- Высота потолков: 3
- Ремонт: требует ремонта
- Тип отопления: Котел газ
- Теплоснабжение: Да
- Тип канализации: Централизованная
- Электричество кВт: 21
- Тип электроснабжения: Да
- Вода: Водопровод
- Водоснабжение: Да
- Газоснабжение: Да
- Дорога: Асфальт
- Категория земли: ДНП
- Санузел: 4
- Раздельный санузел: 4
- Новостройка: Да
- Сауна: Да
Персональный менеджер объекта, Екатерина Сергеева
Rielt Group Agency — это команда профессионалов, которые ставят своей целью не просто закрыть очередную сделку, а оказать заказчику всестороннюю помощь. Это информационная поддержка, продвижение, сбор документов, консультации, проведение переговоров.
Наши постоянные клиенты — это сетевые компании, предприятия, физические лица. За много лет мы накопили опыт работы в разных городах и регионах России, включая Санкт-Петербург, Москву и Крым.
Команда Rielt Group Agency избавит Вас от рисков и тревог, от бумажной волокиты и от необходимости лично контролировать все нюансы.
Хотите получить индивидуальный подбор объектов от агента?
Хотите приобрести или взять в аренду недвижимость? Вам поможет команда Rielt Group Agency. Обращаясь к нам, Вы получаете всестороннюю поддержку — от начальной консультации до заключения договора.
Все объекты агентаПохожие объекты
Устали
выбирать сами?
Соблюдение интересов клиента, удобство и высокое качество оказываемых услуг — наш главный приоритет. Доверяя нам поиск и подбор объектов, Вы экономите свое время и получаете предложения, точно подходящие под Ваш запрос. В Ваше распоряжение будут предоставлены варианты из актуальной и постоянно пополняемой базы Rielt Group Agency. Став нашим клиентом, Вы будете раньше других получать информацию о новых объектах, еще до того, как сведения о них появятся в открытых интернет-источниках.
Хотите узнавать об объектах, не представленных в открытом рынке? Ваш персональный менеджер будет рад предоставить Вам и такую информацию.
Всё ещё остались вопросы?
Хотите подробнее узнать о представленных вариантах? Желаете уточнить подробности сотрудничества с Rielt Group Agency? Просто укажите свое имя и оставьте телефон. Вскоре наш менеджер свяжется с Вами, чтобы подробно ответить на все вопросы.

























































