65,4 кв.м.
Аренда первая линия, 65,4 м²
Лот
38939959Цена за м2
1 300 руб. / в месяцЭтаж
1Расположение
- Локация: Санкт-Петербург
- Район: Фрунзенский
- Адрес: Санкт-Петербург, Фрунзенский район, Лиговский пр-кт., д.271
- Метро: Лиговский проспект
- Пешком до метро: 10 минут
- Показать на карте
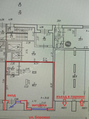
Аренда универсального помещения по адресу Лиговский пр., 271 общей
площадью 65м2 на первом этаже.
Об объекте:
- 1-ая линия;
- 1-й этаж;
- Активный транспортный трафик;
- Отдельный вход с ул. Боровая;
- Сделан качественный свежий ремонт;
- Витринное остекление;
- Отдельный с/у;
- Возможность размещения рекламной вывески на фасаде.
Технические характеристики:
- Входная электрическая мощность - 11 кВт;
- Принудительная приточно-вытяжная вентиляция;
- Высота потолков 3,45м;
- Пол керамогранит;
- Потолок подвесной "Грильято";
- Светильники линейные.
Удобное расположение: 10 минут пешком от м. Лиговский пр. , На авто: 5 минут до
центра города.
Инфраструктура: Помещение находится в ЖК "Первый Лиговский" рядом с остановками общественного транспорта, что обеспечивает высокий трафик. Рядом с помещением вход/выход в ЖК, въезд в подземный паркинг.
УСН. В арендную плату не входит: коммунальные платежи.
Идеально подходит для размещения: медицинского учреждения, косметологии, маникюрного салона, аптеки, пункта выдачи и пр.
Звоните и записывайтесь на просмотр!
Особенности
- Паркинг
- Интернет
Подробнее об объекте
- Тип сделки: аренда
- Тип недвижимости: коммерческая
- Категория: коммерческая
- Тип дома: Кирпичный
- Общая площадь: 65.4 кв.м.
- Цена за м²: 1 300 руб.
- Этаж: 1
- Этажей в доме: 12
- Вид здания: Жилой дом
- Ремонт: косметический
- Фундамент: Отдельный вход (street retail)
- Тип отопления: Центральное
- Теплоснабжение: Да
- Тип канализации: Централизованная
- Электричество кВт: 11
- Тип электроснабжения: Да
- Электромощность: 11
- Санузел: совмещенный
- Совмещенный санузел: Да
- Коммунальные платежи включены: Да
- НДС: без НДС
- Тип коммерческой недвижимости: free purpose
- Фонд: нежилой
Персональный менеджер объекта, Татьяна Башлачева
Rielt Group Agency — это команда профессионалов, которые ставят своей целью не просто закрыть очередную сделку, а оказать заказчику всестороннюю помощь. Это информационная поддержка, продвижение, сбор документов, консультации, проведение переговоров.
Наши постоянные клиенты — это сетевые компании, предприятия, физические лица. За много лет мы накопили опыт работы в разных городах и регионах России, включая Санкт-Петербург, Москву и Крым.
Команда Rielt Group Agency избавит Вас от рисков и тревог, от бумажной волокиты и от необходимости лично контролировать все нюансы.
Хотите получить индивидуальный подбор объектов от агента?
Хотите приобрести или взять в аренду недвижимость? Вам поможет команда Rielt Group Agency. Обращаясь к нам, Вы получаете всестороннюю поддержку — от начальной консультации до заключения договора.
Все объекты агентаПохожие объекты
Устали
выбирать сами?
Соблюдение интересов клиента, удобство и высокое качество оказываемых услуг — наш главный приоритет. Доверяя нам поиск и подбор объектов, Вы экономите свое время и получаете предложения, точно подходящие под Ваш запрос. В Ваше распоряжение будут предоставлены варианты из актуальной и постоянно пополняемой базы Rielt Group Agency. Став нашим клиентом, Вы будете раньше других получать информацию о новых объектах, еще до того, как сведения о них появятся в открытых интернет-источниках.
Хотите узнавать об объектах, не представленных в открытом рынке? Ваш персональный менеджер будет рад предоставить Вам и такую информацию.
Всё ещё остались вопросы?
Хотите подробнее узнать о представленных вариантах? Желаете уточнить подробности сотрудничества с Rielt Group Agency? Просто укажите свое имя и оставьте телефон. Вскоре наш менеджер свяжется с Вами, чтобы подробно ответить на все вопросы.
















































