62 кв.м.
Продажа помещения у метро !, 62 м² ЭКСКЛЮЗИВ
Лот
70818154Комнат
3Цена за м2
269 355 руб.Этаж
1Расположение
- Локация: Санкт-Петербург
- Район: Выборгский
- Адрес: Санкт-Петербург, Выборгский район, Ярославский пр-кт., д.32
- Метро: Удельная
- Пешком до метро: 3 минут
- Показать на карте
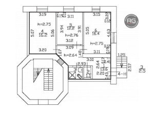
Продажа уникального помещения по адресу Ярославский пр., 32 общей площадью 62м2 на первом этаже.
Об объекте:
- первый этаж;
- кабинетная планировка;
- сан узел и душевая;
- свежий ремонт;
- отдельный вход со двора;
- много окон, очень светлое.
Технические характеристики:
- выделенная мощность 6кВт (возможно увеличение);
- хвс, бойлер;
- парковка во дворе или вдоль улицы открытая;
- потолки 3м.
Удобное расположение: 3 минуты пешком от м. Удельная, активный транспортный и пешеходный трафик.
Инфраструктура: оживленный, густонаселенный спальный район, рядом остановки общественного транспорта, магазины, и тд.
Идеально подходит для инвестиций.
Ликвидный объект для сдачи в аренду!
Прекрасный вариант для офиса, нотариальной конторы, образовательных секций и прочее.
Документы готовы к сделке. Помещение продается по договору купли- продажи.
Звоните и записывайтесь на просмотр!
Для Вас юридическое сопровождение бесплатно!
Особенности
- Паркинг
Подробнее об объекте
- Тип сделки: продажа
- Тип недвижимости: коммерческая
- Категория: коммерческая
- Тип дома: Блоки
- Количество комнат: 3
- Комнатность: 3
- Общая площадь: 62 кв.м.
- Цена за м²: 269 355 руб.
- Этаж: 1
- Этажей в доме: 2
- Вид здания: Жилой дом
- Ремонт: косметический
- Фундамент: Отдельный вход со двора
- Тип отопления: Центральное
- Теплоснабжение: Да
- Тип канализации: Централизованная
- Электричество кВт: 15
- Тип электроснабжения: Да
- Электромощность: 15
- Тип коммерческой недвижимости: free purpose
- Фонд: нежилой
Персональный менеджер объекта, Татьяна Башлачева
Rielt Group Agency — это команда профессионалов, которые ставят своей целью не просто закрыть очередную сделку, а оказать заказчику всестороннюю помощь. Это информационная поддержка, продвижение, сбор документов, консультации, проведение переговоров.
Наши постоянные клиенты — это сетевые компании, предприятия, физические лица. За много лет мы накопили опыт работы в разных городах и регионах России, включая Санкт-Петербург, Москву и Крым.
Команда Rielt Group Agency избавит Вас от рисков и тревог, от бумажной волокиты и от необходимости лично контролировать все нюансы.
Хотите получить индивидуальный подбор объектов от агента?
Хотите приобрести или взять в аренду недвижимость? Вам поможет команда Rielt Group Agency. Обращаясь к нам, Вы получаете всестороннюю поддержку — от начальной консультации до заключения договора.
Все объекты агентаПохожие объекты
Устали
выбирать сами?
Соблюдение интересов клиента, удобство и высокое качество оказываемых услуг — наш главный приоритет. Доверяя нам поиск и подбор объектов, Вы экономите свое время и получаете предложения, точно подходящие под Ваш запрос. В Ваше распоряжение будут предоставлены варианты из актуальной и постоянно пополняемой базы Rielt Group Agency. Став нашим клиентом, Вы будете раньше других получать информацию о новых объектах, еще до того, как сведения о них появятся в открытых интернет-источниках.
Хотите узнавать об объектах, не представленных в открытом рынке? Ваш персональный менеджер будет рад предоставить Вам и такую информацию.
Всё ещё остались вопросы?
Хотите подробнее узнать о представленных вариантах? Желаете уточнить подробности сотрудничества с Rielt Group Agency? Просто укажите свое имя и оставьте телефон. Вскоре наш менеджер свяжется с Вами, чтобы подробно ответить на все вопросы.


































































