157 кв.м.
Аренда 157м2 центр фасад
Лот
53488608Цена за м2
2 000 руб. / в месяцЭтаж
1Расположение
- Локация: Санкт-Петербург
- Район: Центральный
- Адрес: Санкт-Петербург, Центральный район, 2-я Советская ул., д.10
- Метро: Площадь Восстания, Маяковская, Площадь Александра Невского
- Пешком до метро: 10 минут
- Показать на карте
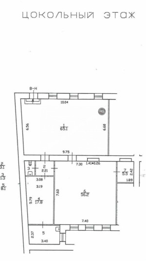
Аренда универсального фасадного помещения по адресу ул. 2-ая Советская д.10 общей площадью 157 м2.
Об объекте:
- Цокольный этаж
- Два входа
- Площадь 157 м2
Технические характеристики:
- Входная электрическая мощность - 25 кВт (возможно увеличение)
- Высота потолков 3,3 метра
- Вентиляция
- Кондиционеры
Удобное расположение: 10 минут пешком от м. Восстания и Маяковская.
Инфраструктура: Помещение находится в центральном районе с большим пешеходным и автомобильным трафиком. Вокруг полно бизнес-центров, кафе ресторанов.
УСН. В арендную плату не входит ку.
Идеально подходит для размещения: офиса, медицинского учреждения, представительства, шоу-рума и пр.
Для Вас юридическое сопровождение бесплатно.
Звоните и записывайтесь на просмотр!
Для Вас юридическое сопровождение бесплатно!
Особенности
- Паркинг
- Интернет
Подробнее об объекте
- Тип сделки: аренда
- Тип недвижимости: коммерческая
- Категория: коммерческая
- Тип дома: Монолитный
- Общая площадь: 157 кв.м.
- Цена за м²: 2 000 руб.
- Этаж: 1
- Этажей в доме: 6
- Высота потолков: 3.3
- Вид здания: Жилой дом
- Ремонт: евро
- Фундамент: Отдельный вход (street retail)
- Тип отопления: Центральное
- Теплоснабжение: Да
- Тип канализации: Централизованная
- Электричество кВт: 25
- Тип электроснабжения: Да
- Электромощность: 25
- Коммунальные платежи включены: Да
- НДС: без НДС
- Тип коммерческой недвижимости: free purpose
- Фонд: нежилой
Персональный менеджер объекта, Татьяна Быхун
Rielt Group Agency — это команда профессионалов, которые ставят своей целью не просто закрыть очередную сделку, а оказать заказчику всестороннюю помощь. Это информационная поддержка, продвижение, сбор документов, консультации, проведение переговоров.
Наши постоянные клиенты — это сетевые компании, предприятия, физические лица. За много лет мы накопили опыт работы в разных городах и регионах России, включая Санкт-Петербург, Москву и Крым.
Команда Rielt Group Agency избавит Вас от рисков и тревог, от бумажной волокиты и от необходимости лично контролировать все нюансы.
Хотите получить индивидуальный подбор объектов от агента?
Хотите приобрести или взять в аренду недвижимость? Вам поможет команда Rielt Group Agency. Обращаясь к нам, Вы получаете всестороннюю поддержку — от начальной консультации до заключения договора.
Все объекты агентаПохожие объекты
Устали
выбирать сами?
Соблюдение интересов клиента, удобство и высокое качество оказываемых услуг — наш главный приоритет. Доверяя нам поиск и подбор объектов, Вы экономите свое время и получаете предложения, точно подходящие под Ваш запрос. В Ваше распоряжение будут предоставлены варианты из актуальной и постоянно пополняемой базы Rielt Group Agency. Став нашим клиентом, Вы будете раньше других получать информацию о новых объектах, еще до того, как сведения о них появятся в открытых интернет-источниках.
Хотите узнавать об объектах, не представленных в открытом рынке? Ваш персональный менеджер будет рад предоставить Вам и такую информацию.
Всё ещё остались вопросы?
Хотите подробнее узнать о представленных вариантах? Желаете уточнить подробности сотрудничества с Rielt Group Agency? Просто укажите свое имя и оставьте телефон. Вскоре наш менеджер свяжется с Вами, чтобы подробно ответить на все вопросы.






















































