31 кв.м.
Квартира с мебелью, 31 м²
Лот
45345880Комнат
1Цена за м2
222 581 руб.Этаж
6Расположение
- Локация: Санкт-Петербург
- Район: Красногвардейский
- Адрес: Санкт-Петербург, Красногвардейский район, Маршала Блюхера пр-кт., д.59
- Метро: Лесная
- До метро на транспорте: 15 минут
- Показать на карте
В продаже замечательная, светлая однокомнатная квартира в Красногвардейском р-не, мкр. округ Полюстрово, просп. Маршала Блюхера, 59.
Об объекте:
- Дом после капитального ремонта;
- Фасад отреставрирован;
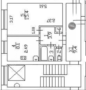
- Квартира с ремонтом, общей площадью 30,9 м2, комната 15,4 м2 и кухня 8,1м2;
- Плита газовая;
- Остается новая встроенная кухня и мебель;
- Квартира с большими окнами и великолепным видом на большой зеленый двор;
- Санузел раздельный;
- Чистая парадная;
- Лифт.
Преимущества:
Гимназия 664 (2 мин. )
Школа с английским уклоном 180 (5мин. )
Школа с творческим и музыкальным направлением 188 (5 мин.)
Школа с математическим уклоном 521 (5мин.)
Государственная музыкальная школа (10мин)
Библиотека-резиденция Шкаф (5мин. )
Удобное расположение: остановка рядом с домом, удобная транспортная развязка.
Инфраструктура: в шаговой доступности школа, детский сад, магазины.
Показы в удобное для вас время по предварительной договоренности.
Квартира в ипотеке сбер, остаток 1200 т.р.
Звоните и записывайтесь на просмотр.
Для Вас юридическое сопровождение бесплатно!
Особенности
- Ипотека
- Лифт
Подробнее об объекте
- Год постройки: 1967 г.
- Тип сделки: продажа
- Тип недвижимости: жилая
- Категория: квартира
- Тип дома: Панельный
- Количество комнат: 1
- Комнатность: 1
- Общая площадь: 31 кв.м.
- Жилая площадь: 15.4 кв.м.
- Площадь кухни: 8.1 кв.м.
- Площадь комнаты: 15.4
- Площадь прихожей: 4 кв.м.
- Цена за м²: 222 581 руб.
- Этаж: 6
- Этажей в доме: 9
- Вид из окон: Во двор
- Ремонт: косметический
- Планировка: Изолированная
- Тип отопления: Центральное
- Газоснабжение: Да
- Санузел: раздельный
- Раздельный санузел: Да
- Мусоропровод: Да
Персональный менеджер объекта, Светлана Велигура
Rielt Group Agency — это команда профессионалов, которые ставят своей целью не просто закрыть очередную сделку, а оказать заказчику всестороннюю помощь. Это информационная поддержка, продвижение, сбор документов, консультации, проведение переговоров.
Наши постоянные клиенты — это сетевые компании, предприятия, физические лица. За много лет мы накопили опыт работы в разных городах и регионах России, включая Санкт-Петербург, Москву и Крым.
Команда Rielt Group Agency избавит Вас от рисков и тревог, от бумажной волокиты и от необходимости лично контролировать все нюансы.
Хотите получить индивидуальный подбор объектов от агента?
Хотите приобрести или взять в аренду недвижимость? Вам поможет команда Rielt Group Agency. Обращаясь к нам, Вы получаете всестороннюю поддержку — от начальной консультации до заключения договора.
Все объекты агентаПохожие объекты
Устали
выбирать сами?
Соблюдение интересов клиента, удобство и высокое качество оказываемых услуг — наш главный приоритет. Доверяя нам поиск и подбор объектов, Вы экономите свое время и получаете предложения, точно подходящие под Ваш запрос. В Ваше распоряжение будут предоставлены варианты из актуальной и постоянно пополняемой базы Rielt Group Agency. Став нашим клиентом, Вы будете раньше других получать информацию о новых объектах, еще до того, как сведения о них появятся в открытых интернет-источниках.
Хотите узнавать об объектах, не представленных в открытом рынке? Ваш персональный менеджер будет рад предоставить Вам и такую информацию.
Всё ещё остались вопросы?
Хотите подробнее узнать о представленных вариантах? Желаете уточнить подробности сотрудничества с Rielt Group Agency? Просто укажите свое имя и оставьте телефон. Вскоре наш менеджер свяжется с Вами, чтобы подробно ответить на все вопросы.



















































