605 кв.м.
Коттедж в клубном посёлке, 605 м²
Лот
49407535Комнат
3Цена за м2
312 397 руб.Всего этажей
2Расположение
- Локация: Солнечное п.
- Район: Курортный
- Адрес: Санкт-Петербург, Курортный район, Солнечное п., Курортный, Вокзальная ул., д.10
- Метро: Беговая
- До метро на транспорте: 20 минут
- Показать на карте
Предлагаем к приобретению двухэтажный дом с цоколем - построен по технологии ФАХВЕРК, в элитном современном клубном поселке из 11 домов.
Площадь дома - 605 м2, участок 28 соток.
Дом с дизайнерской отделкой, полностью укомплектован мебелью и техникой.
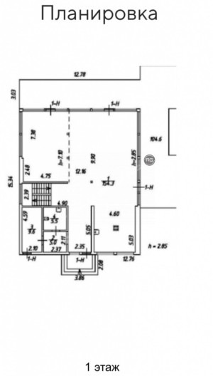
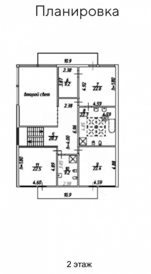
Эргономичная, продуманная планировка:
- Цокольный этаж: сауна с купелью из маренного дуба, санузел, винный погреб, кинотеатр, игровая и технические помещения.
- Первый этаж: кухня, гостиная, санузел. В гостиных зонах установлены Камины с Топками Palazzetti Sunny Fire 100 DX с облицовкой из натурального камня.
- Второй этаж: три спальни, гардеробные, ванные комнаты.
Дом оборудован индивидуальной котельной, установлен котел немецкого производства, фирмы Buderus. На всех этажах дома смонтированы теплые полы. Первый и цокольный этажи дома оборудованы централизованной системой вентиляции и кондиционирования воздуха. В спальных комнатах второго этажа установлены индивидуальные системы кондиционирования воздуха.
Вся территория посёлка благоустроена. Искусственные водоемы, декоративные холмы. Многолетние растения и деревья ель, сосна, можжевельник превращают территорию комплекса в современный и уютный парк. Территория полностью огорожена металлическим забором, установлены системы видеонаблюдения, охранная сигнализация по периметру поселка, современная система контроля доступа.
Комплекс расположен в поселке Солнечное, рядом с Финским заливом. Благодаря ЗСД и КАД добраться до центра города можно за 30 минут.
Звоните и записывайтесь на индивидуальный просмотр.
Особенности
- Ипотека
Подробнее об объекте
- Тип жилья: коттедж
- Тип сделки: продажа
- Тип недвижимости: жилая
- Категория: коттедж
- Тип дома: Брус
- Количество комнат: 3
- Комнатность: 3
- Общая площадь: 605 кв.м.
- Площадь участка: 28 сотка
- Тип участка: ДНП
- Цена за м²: 312 397 руб.
- Этажей в доме: 2
- Высота потолков: 3
- Ремонт: дизайнерский
- Тип отопления: Котел газ
- Теплоснабжение: Да
- Тип канализации: Централизованная
- Электричество кВт: 21
- Тип электроснабжения: Да
- Вода: Водопровод
- Водоснабжение: Да
- Газоснабжение: Да
- Дорога: Асфальт
- Категория земли: ДНП
- Санузел: 5
- Раздельный санузел: 5
- Новостройка: Да
- Сауна: Да
Персональный менеджер объекта, Екатерина Сергеева
Rielt Group Agency — это команда профессионалов, которые ставят своей целью не просто закрыть очередную сделку, а оказать заказчику всестороннюю помощь. Это информационная поддержка, продвижение, сбор документов, консультации, проведение переговоров.
Наши постоянные клиенты — это сетевые компании, предприятия, физические лица. За много лет мы накопили опыт работы в разных городах и регионах России, включая Санкт-Петербург, Москву и Крым.
Команда Rielt Group Agency избавит Вас от рисков и тревог, от бумажной волокиты и от необходимости лично контролировать все нюансы.
Хотите получить индивидуальный подбор объектов от агента?
Хотите приобрести или взять в аренду недвижимость? Вам поможет команда Rielt Group Agency. Обращаясь к нам, Вы получаете всестороннюю поддержку — от начальной консультации до заключения договора.
Все объекты агентаПохожие объекты
Устали
выбирать сами?
Соблюдение интересов клиента, удобство и высокое качество оказываемых услуг — наш главный приоритет. Доверяя нам поиск и подбор объектов, Вы экономите свое время и получаете предложения, точно подходящие под Ваш запрос. В Ваше распоряжение будут предоставлены варианты из актуальной и постоянно пополняемой базы Rielt Group Agency. Став нашим клиентом, Вы будете раньше других получать информацию о новых объектах, еще до того, как сведения о них появятся в открытых интернет-источниках.
Хотите узнавать об объектах, не представленных в открытом рынке? Ваш персональный менеджер будет рад предоставить Вам и такую информацию.
Всё ещё остались вопросы?
Хотите подробнее узнать о представленных вариантах? Желаете уточнить подробности сотрудничества с Rielt Group Agency? Просто укажите свое имя и оставьте телефон. Вскоре наш менеджер свяжется с Вами, чтобы подробно ответить на все вопросы.














































