245 кв.м.
Дом с премиальной отделкой, 245 м²
Лот
51614327Комнат
4Цена за м2
177 960 руб.Всего этажей
3Расположение
- Локация: Кирполье д.
- Район: Кирполье д.
- Адрес: Ленинградская область, Всеволожский район, Кирполье д., Восточный проезд., д.10
- Показать на карте
В продаже домовладение площадью 245 кв.м на участке 6 соток в закрытом коттеджном поселке в американсом стиле.
В стоимость включена премиальная отделка:
-Кухня с бытовой техникой
-Гранитные столешницы
-Дубовые лестницы
-Деревянные элементы декора
-Паркетный пол
-Постирочная.
Конструктив дома - LVL и доска клееного бруса. Заглубленный железобетонный фундамент. Дом снаружи отделан клинкерным камнем. Теплые полы во всем доме. Полиуретановая изоляция.
Участок с ландшафтным дизайном. Парковка машин под навесом. Также под навесом есть кладовка для хранения шин и садового инвентаря.
Эргономичная планировка:
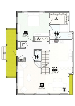
На цокольном этаже располагаются спальня, гостиная, сауна с комнатой отдыха и кабинет.
На первом этаже просторная хозяйская половина — спальня с отдельной ванной, туалет, кухня, столовая и гостиная с камином. Из столовой раздвижные двери ведут в европейского стиля уютный дворик, выложенный камнем и окруженный каменными стенами. Сбоку дома есть зеленый газон.
На втором этаже находятся две идентичные детские спальни с зонами для игры или учебы и для сна. В игровых зонах есть небольшие светлые альковы, образованные двумя симметричными выступами с окнами. Между спальнями — ванная комната. Еще одна спальня на втором этаже имеет свою ванную.
Единство с природой: поселок расположен в окружении соснового бора, холмистых пейзажей и прозрачных озер.
Инфраструктура: школы, магазины, поликлиники, автобусная остановка в 300 метрах. Расстояние до КАД всего 11 км. В поселке свой детский сад, площадки, ухоженные газоны, дороги, система видеонаблюдения и освещения на всей территории.
Все коммуникации городские, подключены и заведены в дом.
Статус ИЖС. Дом и участок в собственности.
Приглашаем на просмотр в удобное для Вас время!
Особенности
- Ипотека
Подробнее об объекте
- Тип жилья: коттедж
- Тип сделки: продажа
- Тип недвижимости: жилая
- Категория: коттедж
- Тип дома: Клееный брус
- Количество комнат: 4
- Комнатность: 4
- Общая площадь: 245 кв.м.
- Площадь участка: 6 сотка
- Тип участка: ИЖС
- Цена за м²: 177 960 руб.
- Этажей в доме: 3
- Высота потолков: 3
- Ремонт: дизайнерский
- Тип отопления: Центральное
- Теплоснабжение: Да
- Тип канализации: Централизованная
- Электричество кВт: 13
- Тип электроснабжения: Да
- Вода: Водопровод
- Водоснабжение: Да
- Газоснабжение: Да
- Дорога: Асфальт
- Категория земли: ИЖС
- Санузел: 4
- Раздельный санузел: 4
- Новостройка: Да
- Сауна: Да
Персональный менеджер объекта, Екатерина Сергеева
Rielt Group Agency — это команда профессионалов, которые ставят своей целью не просто закрыть очередную сделку, а оказать заказчику всестороннюю помощь. Это информационная поддержка, продвижение, сбор документов, консультации, проведение переговоров.
Наши постоянные клиенты — это сетевые компании, предприятия, физические лица. За много лет мы накопили опыт работы в разных городах и регионах России, включая Санкт-Петербург, Москву и Крым.
Команда Rielt Group Agency избавит Вас от рисков и тревог, от бумажной волокиты и от необходимости лично контролировать все нюансы.
Хотите получить индивидуальный подбор объектов от агента?
Хотите приобрести или взять в аренду недвижимость? Вам поможет команда Rielt Group Agency. Обращаясь к нам, Вы получаете всестороннюю поддержку — от начальной консультации до заключения договора.
Все объекты агентаПохожие объекты
Устали
выбирать сами?
Соблюдение интересов клиента, удобство и высокое качество оказываемых услуг — наш главный приоритет. Доверяя нам поиск и подбор объектов, Вы экономите свое время и получаете предложения, точно подходящие под Ваш запрос. В Ваше распоряжение будут предоставлены варианты из актуальной и постоянно пополняемой базы Rielt Group Agency. Став нашим клиентом, Вы будете раньше других получать информацию о новых объектах, еще до того, как сведения о них появятся в открытых интернет-источниках.
Хотите узнавать об объектах, не представленных в открытом рынке? Ваш персональный менеджер будет рад предоставить Вам и такую информацию.
Всё ещё остались вопросы?
Хотите подробнее узнать о представленных вариантах? Желаете уточнить подробности сотрудничества с Rielt Group Agency? Просто укажите свое имя и оставьте телефон. Вскоре наш менеджер свяжется с Вами, чтобы подробно ответить на все вопросы.






















































